Cargando...

Chillán, Fym arrienda bodega pleno centro (60468)

Detalles

Valor:
$ 300.000
Valor (UF aprox.)*:
UF 7,57
Conversión: 1 UF = $ 39.628
Superficie Total:
12 m²
Superficie Útil:
12 m²

Dirección:
Chillán, Fym arrienda bodega pleno centro (60468)
Código aviso:
65680715
Código externo aviso:
60468
Tipo de publicación:
Arriendo Mensual
Tipo de propiedad:
Bodega
Fecha Publicación:
23/09/2025
* Valor calculado a partir del valor original, este valor es solo referencial.
Más Bodegas en Chillán

Descripción

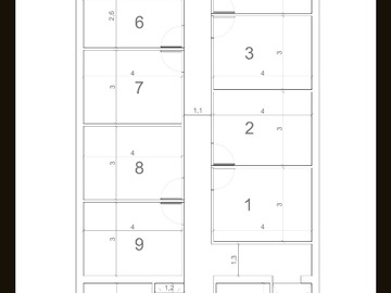
Descubre esta increíble oportunidad en la comuna de diguillin, en chillán, chile. Con un total de 10 bodegas disponibles, este espacio es ideal para quienes buscan ampliar su negocio o almacenar mercadería de forma segura. Con una ubicación estratégica en la región, este lugar ofrece 15 metros cuadrados de construcción y terreno. No dejes pasar esta oportunidad! precio: desde clp 300,000. Contáctanos hoy para más información!

Fym arrienda bodegas pequeñas en pleno centro de chillan, estan en proceso de construccion, tranquilidad y seguridad.

Fecha entrega : 06-05-2024
Medidas : 4.00 mt fondo, 3.00 mt ancho, 3.00 mt alto
Valor lanzamiento : 300.000

Atencion empresas, negocios, supermercado, rubro automotriz, mall chino, etc

Es tu oportunidad para reservar tu bodega.

Mapa - Chillán, Fym arrienda bodega pleno centro (60468)

Comodidades y Lugares de Interés

Las distancias son aproximadas y consideran una linea recta entre la propiedad y el punto de interés (No consideran las cuadras).

Plaza El Roble
El Roble 770
424 metros

Contactar

Email inválido
Teléfono inválido
Consejos de seguridad - No sea estafado

Corredora

Logo corredora
Nombre FYM INVERSIONES
Email VER CORREO
Dirección Chillán
Teléfonos VER TÉFONOS

Información de Contacto

Nombre Andres Flores
Teléfono T. Fijo VER TÉLEFONO