Cargando...

Lo Barnechea, Av Los Trapenses

Detalles

Valor:
UF 52,87
Valor (CLP aprox.)*:
$ 2.094.608
Conversión: 1 UF = $ 39.618
Estacionamientos:
30
Amoblado:
No
Superficie Total:
117,49 m²
Superficie Construida:
117,49 m²

Dirección:
Lo Barnechea, Av Los Trapenses
Código aviso:
97054593
Código externo aviso:
446363
Tipo de publicación:
Arriendo Mensual
Tipo de propiedad:
Local Comercial
Fecha Publicación:
15/10/2025
* Valor calculado a partir del valor original, este valor es solo referencial.
Más Local Comercials en Lo Barnechea

Descripción

ARRIENDO
Locales Comerciales, Strip Center, La Dehesa

El Strip Center se encuentra ubicado en avenida principal con alto movimiento, paraderos de Locomoción colectiva cercanos.

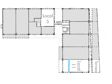
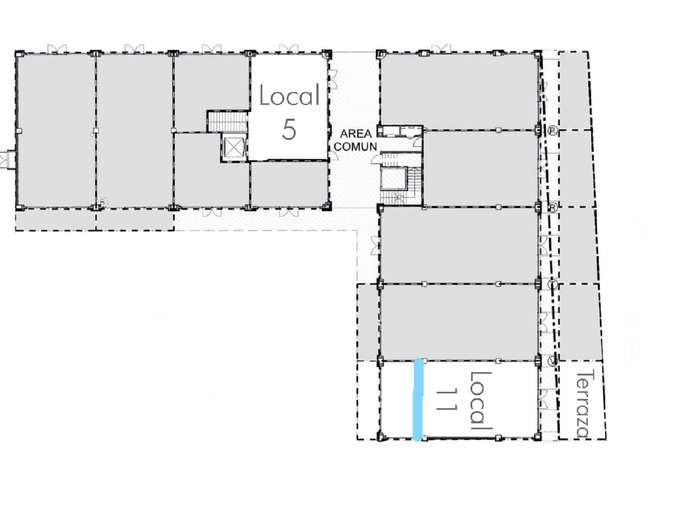
El local comercial 12, espejo del 13, se encuentra en el segundo piso, con visibilidad hacia los estacionamientos y el interior del centro comercial.
Se encuentra en obra gruesa. Cuenta con sistema de detección de humo, electricidad trifásica, y conexiones para baño.

El centro comercial posee dos pisos y una plaza central donde se encuentra un restaurante.
Cuenta con 2.090 m2 de locales comerciales más 3.800 m2 de mini bodegas y dos subterráneos.
30 estacionamientos en superficies y 82 en subterráneos
Bicicleteros
Ascensor para el segundo nivel
Grupo electrógeno para áreas comunes
Red húmeda y seca
Seguridad 24/7 y CCTV
Horario de funcionamiento actual de lunes a domingo de 8:00 a 00:00 horas, posibilidad de ampliarlo de acuerdo a las necesidades del arrendatario.

Alternativas disponibles :
En primer piso a 0,70 UF/m2 +IVA
Local 6 de 33,36 m2

En segundo piso:
Orientados hacia los estacionamientos a 0,45 UF/m2 + IVA
Local 12 de 117,49 m2

Posibilidad de arriendar adicionalmente
Estacionamientos a UF 3,5/u
Bodegas: 0,25 UF/m2

Año: 2019
Gastos comunes: 0,12 UF/m2 aprox.
Plazo mínimo de arriendo: 12 meses
Posibilidad de financiamiento de habilitación sujeto a evaluación
Incluye financiamiento de mobiliario con un topo de 1 UF/m2
Arriendo + IVA

LA INFORMACIÓN ESPECÍFICA DE LA PUBLICACIÓN CORRESPONDE AL LOCAL 12

- KP446363 - KPT110306 -
- Publicado usando KiteProp CRM Inmobiliario

Mapa - Lo Barnechea, Av Los Trapenses

Comodidades y Lugares de Interés

Las distancias son aproximadas y consideran una linea recta entre la propiedad y el punto de interés (No consideran las cuadras).

Supermercado Unimarc - Av. José Alcalde Délano
Av. Jose Alcalde Delano N° 10497
495 metros

Contactar

Email inválido
Teléfono inválido
Consejos de seguridad - No sea estafado

Corredora

Logo corredora
Nombre Agentes Inmobiliarios Asociados-AINA
Email VER CORREO
Teléfonos VER TÉFONOS

Información de Contacto

Nombre María Fernanda Villarreal Plazas
Teléfono T. Fijo VER TÉLEFONO