Detalles

















Casa esquina con alto potencial comercial ubicada en Av. Chile Centenario 287, en la ciudad de Los Andes, en un sector de alta densidad y carácter mixto, con presencia de viviendas, servicios y comercio. Destaca por su excelente conectividad, a solo 300 metros de Av. Chacabuco, sobre eje Av. Perú, y con locomoción colectiva cercana.
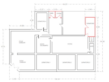
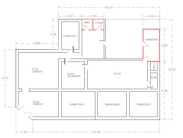
La propiedad posee un terreno total de 264 m², distribuidos en 201 m² correspondientes a la vivienda principal, 16 m² de vivienda de ampliación y 47 m² de patio, totalizando 217 m² construidos, además de cierres perimetrales y pavimentos.
Su condición de casa esquina y doble acceso por Av. Chile Centenario 287 y Av. Perú 307 le otorgan un alto potencial comercial, ideal para uso habitacional, emprendimientos o desarrollo de actividades comerciales.
Precio de Venta 3.023 UF
Comisión de Corretaje equivalente al 2% del precio de venta + IVA
Visitala ya!! Contáctanos al 56 941967887 / habitaliap@gmail.com
Espacio Urbano Los Andes
Santa Teresa 683
458 metros
| Nombre | Gloria Acuña |
|---|---|
| Teléfono T. Fijo | VER TÉLEFONO |