Cargando...

Macul, Gran galpón en excelente sector comercial, Ma (124371)

Detalles

Valor:
UF 13.500,00
Valor (CLP aprox.)*:
$ 533.880.585
Conversión: 1 UF = $ 39.547
Baño:
1
Estacionamientos:
10
Amoblado:
No
Superficie Total:
562 m²
Superficie Construida:
562 m²

Dirección:
Macul, Gran galpón en excelente sector comercial, Ma (124371)
Código aviso:
97291409
Código externo aviso:
124371
Tipo de publicación:
Venta
Tipo de propiedad:
Local Comercial
Fecha Publicación:
17/10/2025
* Valor calculado a partir del valor original, este valor es solo referencial.
Más Local Comercials en Macul

Descripción

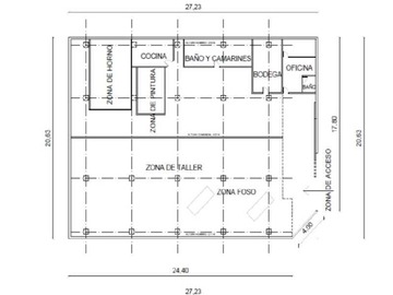
Increíble oportunidad de inversión en Macul, Chile. Disponemos de un exclusivo Galpón comercial en venta ubicado en reconocida zona de Macúl. Este espacio cuenta con un baño y una bodega, ideal para satisfacer todas tus necesidades de negocio. Con una construcción de 562 metros cuadrados y un amplio terreno del mismo tamaño, este local brinda un espacio generoso para desarrollar tus proyectos empresariales ofreciendo comodidad y facilidad de acceso a tus clientes. Ubicado en excelente sector comercial, ideal para mall chino o comercio a fin, actualmente es un taller mecánico.

Cercano a locomoción, bancos, centros comerciales, médicos, supermercados.

ID. 11867

Aprovecha esta oportunidad, haz clic en contactar y agenda tu visita!
Descubre en nuestra web Novel propiedades, más propiedades para ti.

Mapa - Macul, Gran galpón en excelente sector comercial, Ma (124371)

Comodidades y Lugares de Interés

Las distancias son aproximadas y consideran una linea recta entre la propiedad y el punto de interés (No consideran las cuadras).

Supermercado Ekono - Av. Pedro de Valdivia / Zañartu
Av. Pedro de Valdivia N° 5359
292 metros

Contactar

Email inválido
Teléfono inválido
Consejos de seguridad - No sea estafado

Corredora

Información de Contacto

Nombre Bernardo Díaz
Teléfono T. Fijo VER TÉLEFONO